Project Details

Project information

  • Category: Residential , Cave Creek
  • Client: Pelletier
  • Project date: 17 Jan, 2025

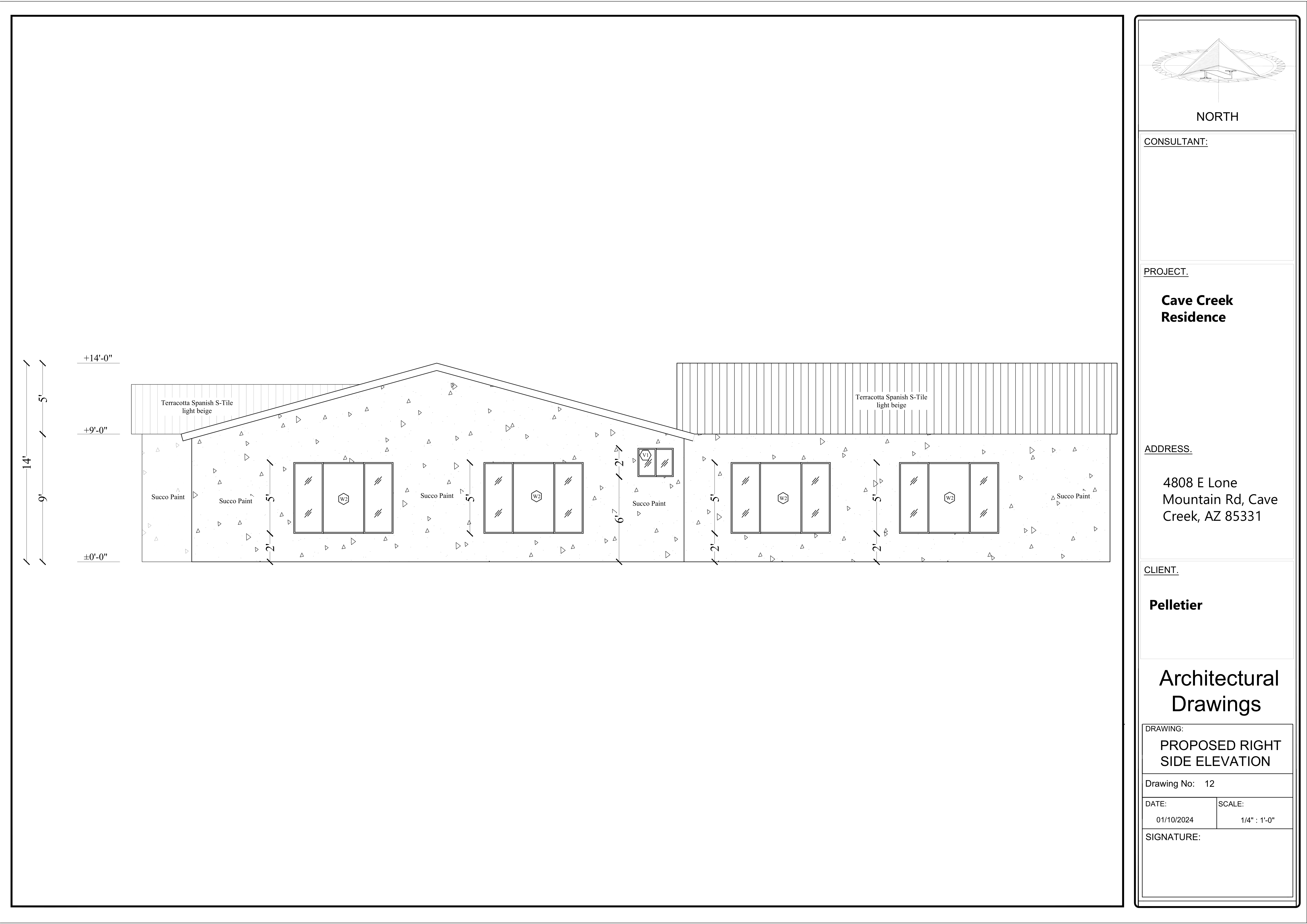
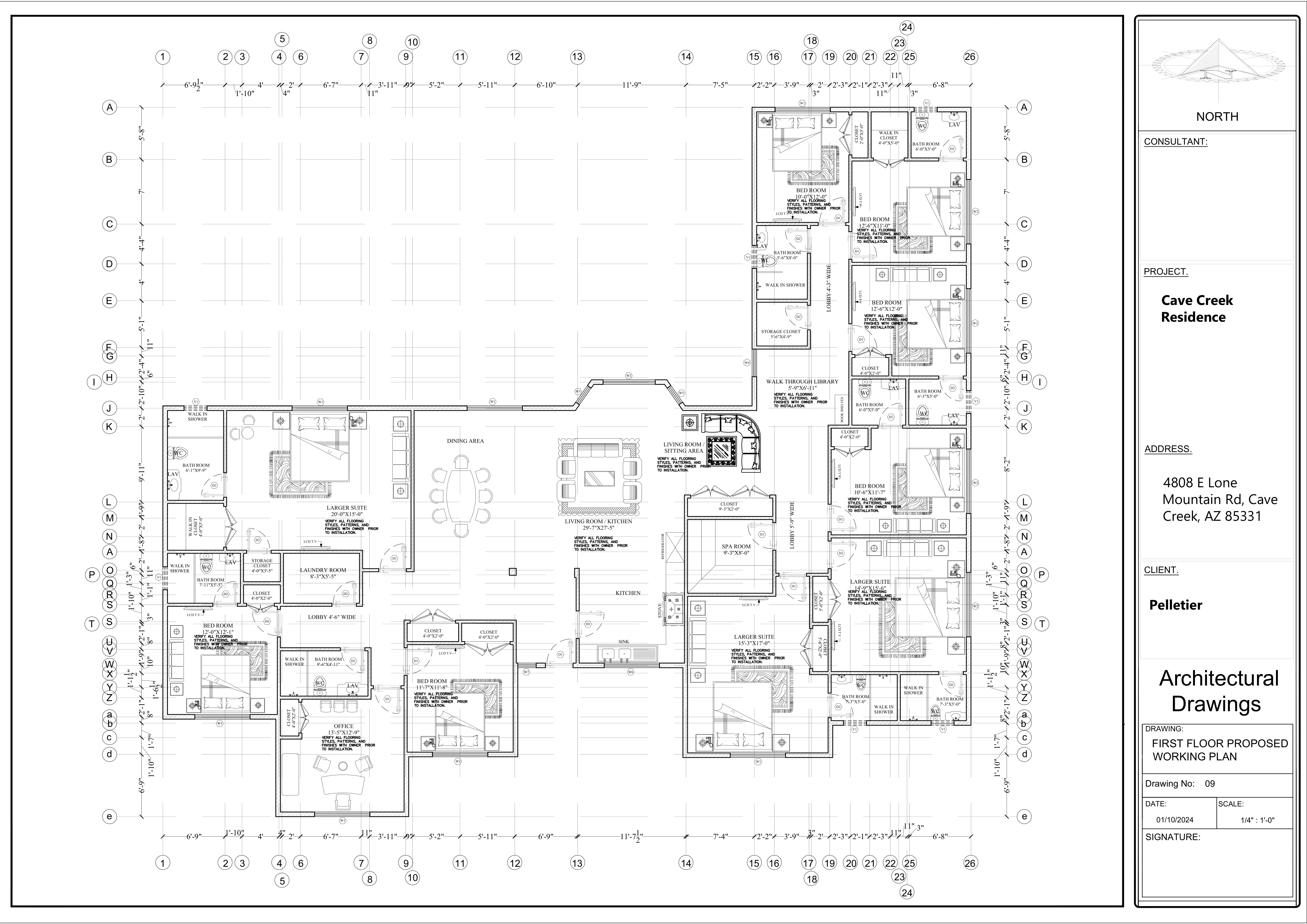
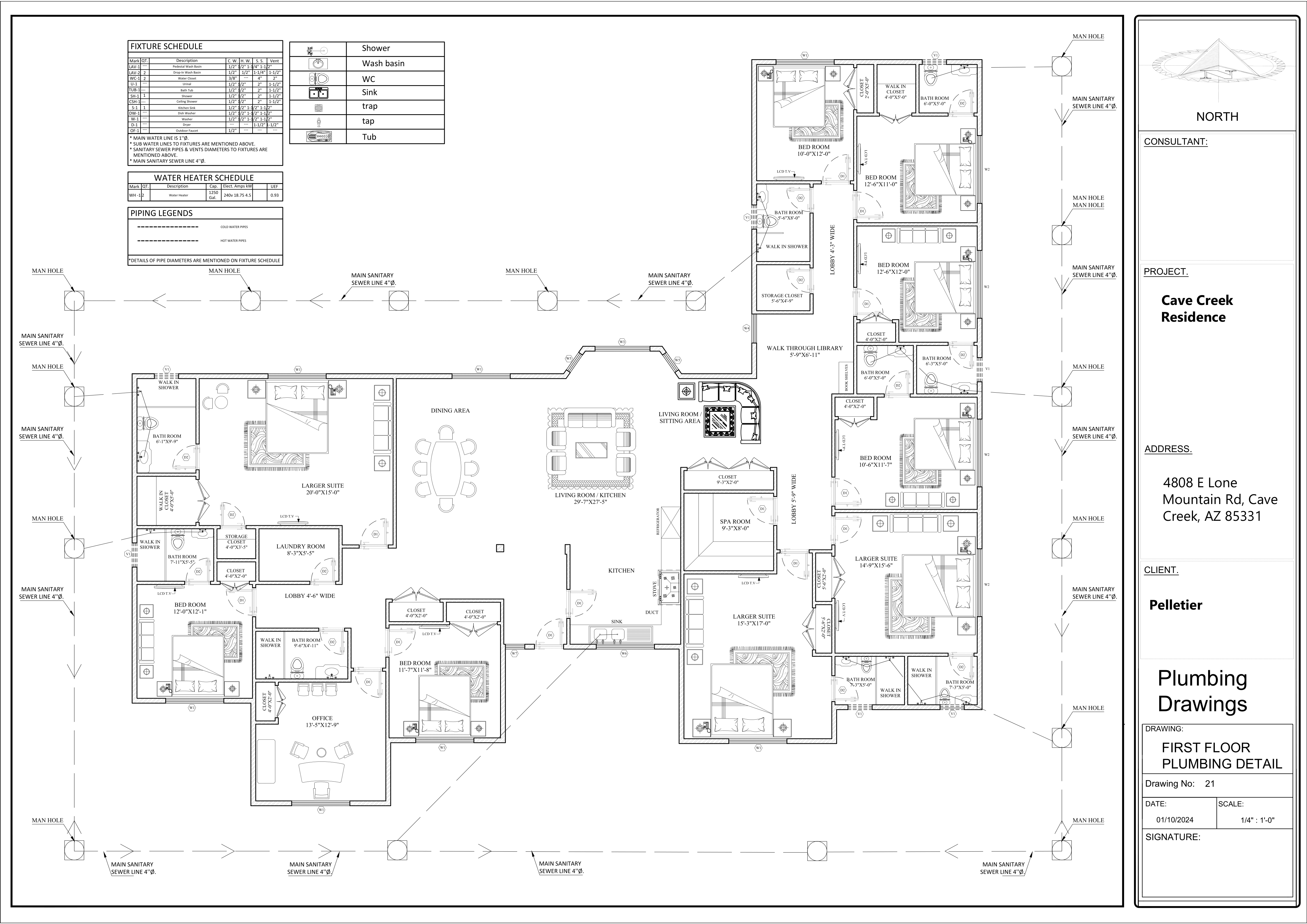
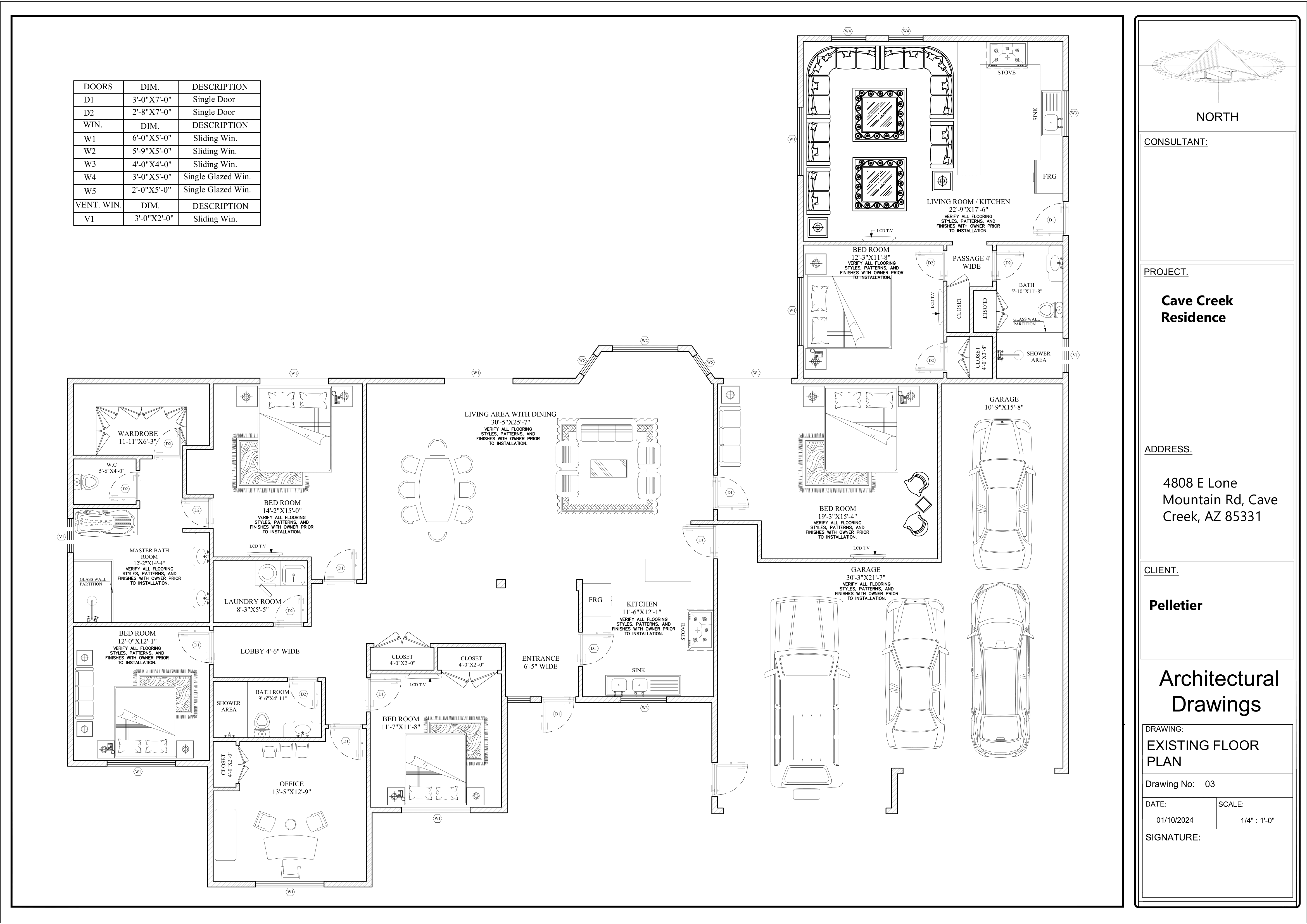
Detail Architectural Drawings of cave careek House

This project was developed for the Pelletier family in Cave Creek, focusing on detailed architectural drawings for a residential home. The design emphasizes harmony with the natural desert landscape while offering modern comforts and spacious living. Every detail—from layout to structural articulation—was thoughtfully planned to ensure both functionality and elegance, creating a refined living experience in this serene location.